Le collaborazioni con studi di professionisti ingegneri nella progettazione ed analisi meccanica oltre che tecnici qualificati EWE fornisce al cliente che lo richiede una consulenza globale specializzata.
Anni di lavoro in equipe sono in grado di rispondere in maniera veloce ed affidabile all’esigenza progettuale del cliente proponendo sempre un ventaglio di soluzioni innovative e con alti standard qualitativi.
L’ingegneria segue la progettazione dal concept fino alla finalizzazione del prodotto, curando per il cliente anche la parte relativa alla fornitura.
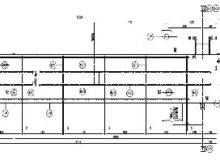
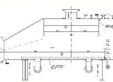
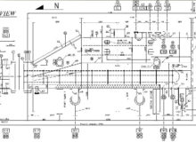
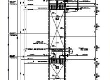
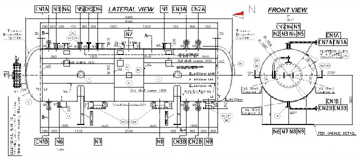
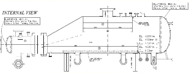
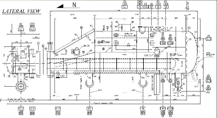
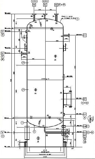
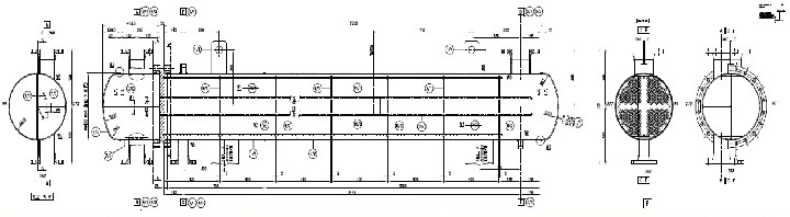
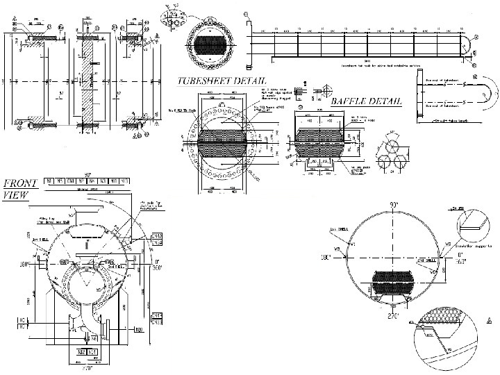
I settori di intervento dell’azienda comprendono la progettazione dei silos, carpenteria, colonne, torri, scambiatori di calore.
I sistemi di progettazione sono in grado di soddisfare tutte le esigenze della clientela con studi di calcolo agli elementi finiti, progettazione secondo normativa nazionale ed internazionale quali PED (97/23/CE), ASME VIII Div. 1 e 2, ASME I, ATEX (94/9/CE e 99/92/CE), BS 5500, AD Merkblatt, Ispesl, ecc, standard internazionali, TEMA, API, ANSI, DIN, AFNOR, UNI oltre che alla realizzazione grafica mediante specifici software di modellazione solida parametrica 3D.





















