The collaborations with professional engineers in the design and mechanical analysis as well as with qualified EWE technicians supply to the requesting client a specialised global consultation. Years of teamwork show the ability in answering in a quick and a reliable way to the client’s planning requirements always proposing a range of innovative solutions and with high quality standards.
The engineering follows the design from the concept arriving to the completion of the product, taking also care of the provision part to the customer.
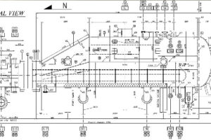
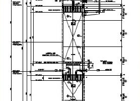
The areas of intervention of the company include the design of the silos, carpentry, columns, towers, heat exchangers.
The design systems are able to satisfy all the customers’ requirements with evaluation studies at the finished elements, the design according to the national and international regulations like PED (97/23/CE), ASME VIII Div. 1 and 2, ASME I, ATEX (94/9/CE and 99/92/CE), BS 5500, AD Merkblatt, Ispesl, etc., international standards, TEMA, API, ANSI, DIN, AFNOR, UNI as well as the graphic design through specific software of solid parametric 3D modelling.




















